Добро пожаловать на http://vipplan.ru

Випплан Минеральные Воды - это тысячи проектов домов в нашем каталоге!

Вы всегда сможете найти для себя проект дома вашей мечты! Даже если этого не случилось, мы готовы в любую минуту предложить проект индивидуального дома.

Забыли пароль?
Вы еще не регистрировались?

Перейдите по ссылке ниже на страницу регистрации.

Регистрация...

Внимание!!!

В проектную документацию могут быть внесены изменения любой сложности, в соответствии в Вашими пожеланиями!

Полезные статьи

Дом это прекрасное вложение

Современный рынок недвижимости диктует свои правила. Цены на землю и недвижимость в Минеральных водах постоянно растут и вынуждают по-другому смотреть на покупку собственного дома. Не только со стороны получения удобного, благоустроенного жилья, но и со стороны капитализации и инвестировании своих средств...

Фундамент под гараж

Обычно фундаменты под гараж делаются из бетонного раствора и заливаются, как монолит. Гаражные фундаменты так же можно укладывать из бетона с применением бутового камня. Такие фундаменты тоже считаются монолитными. В этом случае происходит экономия бетона....

Проекты домов и коттеджей > Каталог проектов домов > Одноэтажный дом с мансардой и гаражом Vg1125

Одноэтажный дом с мансардой и гаражом Vg1125

Одноэтажный дом с мансардой и гаражом
Зарегистрируйтесь

Проект № Vg1125


Техническое описание
Общая площадь: 204.36 м2
Жилая площадь: 124.69 м2
Высота здания: 9.05 м
Размеры дома: 15.72м×11.92м
Кол-во комнат: 6
Цокольный этаж: нет
Гараж: нет
Мансарда: есть

Kонструкция
Фундамент: Монолитная ж/б плита
Перекрытия: Сборные ж/б плиты
Материал стен: Керамоблок

Архитектурный раздел
Конструктивный раздел
АР+КР - 64 000 (Со скидкой 20%)
Проект индивидуального одноэтажного жилого дома с мансардой с размерами здания 15,72 x 11,92 м. Наружная отделка здания – облицовочный кирпич, деревянные панели. Фундамент – монолитная ж/б плита. Наружные стены – пустотнопоризованный керамический блок, технологический зазор, облицовочный кирпич (забутовочный кирпич и деревянные панели). Внутренние стены – пустотнопоризованный керамический блок. Перегородки – из забутовочного кирпича. Пол первого этажа – пол по фундаментной плите. Межэтажное перекрытие – сборные ж/б плиты перекрытия. Крыша – многоскатная. Кровля – битумная черепица. Окна — металлопластиковые.
Генплан застройки участка / Паспорт проекта 7000 руб / 10000 руб
Инженерный раздел (полный) 102000 руб
Смета на строительство 51000 руб
Теплотехнический расчет материалов стен Бесплатно
Стоимость проекта со незначительнми изменениями 74900 руб
Стоимость проекта со средними изменениями* 90200 руб
Стоимость проекта со значительными изменениями** 94300 руб

План первого этажа


Тамбур — 3,00 м2
Холл — 8,22 м2
Бойлерная — 3,91 м2
С/у — 3,91 м2
Гараж — 30,35 м2
Гостевая — 12,23 м2
Гостиная — 26,94 м2
Кухня — 11,45 м2
Кладовая — 1,11 м2

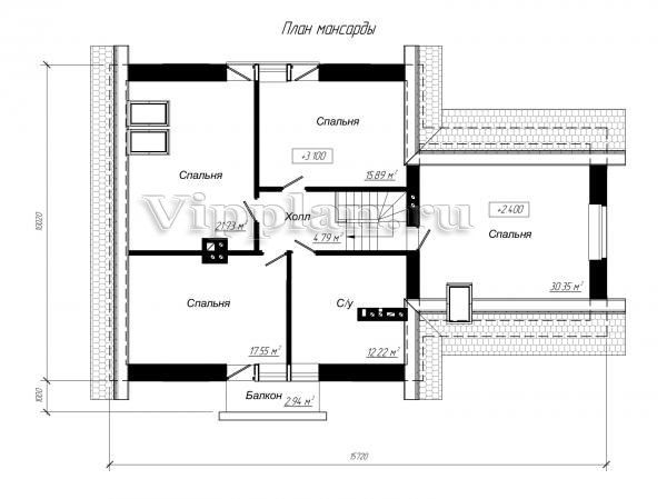
План мансардного этажа


Холл — 4,79 м2
Спальня — 15,89 м2
Спальня — 30,35 м2
Спальня — 17,55 м2
Спальня — 21,73 м2
С/у — 12,22 м2
Балкон — 0,88 м2
Одноэтажный дом с мансардой и гаражом Одноэтажный дом с мансардой и гаражом Одноэтажный дом с мансардой и гаражом Одноэтажный дом с мансардой и гаражом

Модификации проектов

Внесение изменений и привязка к участку строительства

В любой из проектов от компании VIPplan - Минеральные Воды по вашему желанию могут быть внесены изменения в материалы стен, материалы наружной отделки дома, а также будет произведена адаптация проекта под конкретный регион строительства (с учетом грунтов региона, геологических особенностей вашего участка и местных климатических условий) - БЕСПЛАТНО !!! (кроме проектов со скидкой и проектов наших партнеров).

Любой из проектов, размещенных на сайте mineralnyie-vodyi.vipplan.ru мы можем выполнить из требуемых вам строительных материалов: ячеистый бетон (газобетон, пеноблок), керамоблок, кирпич, шлакоблок, бетонный блок, дерево (брус, клееный брус), каркасная технология (деревянный каркас, металлокаркас (ЛСТК)).

Фасад дома и его наружную отделку так же возможно выполнить с применением различных облицовочных материалов: структурной штукатурки, (с утеплителем и без), сайдингом (пластиковый или металлосайдинг), фиброплитами, кирпича.

 
6 Избранные
проекты

Доставка проектов по России: Москва (Московская область), Санкт-Петербург (Ленинградская область), Краснодар, Ростов-на-Дону, Ставрополь, Сочи, Волгоград, Новосибирск, Белгород, Брянск, Воронеж, Саратов, Хабаровск, Астрахань, Нальчик, Владикавказ, Екатеринбург, Тюмень, Самара, Нижний Новгород, Казань, Пермь, Уфа, Челябинск, Красноярск, Ханты-Мансийск, Иркутск, Курган, Оренбург, Омск, Томск, Барнаул, Новокузнецк, Кемерово, Абакан, Чита, Якутск, Южно-Сахалинск, Петропавловск-Камчатский и страны ближнего зарубежья: Белоруссия, Украина, Казахстан